Nick Augustine

Incomplete Themed Experience Projects

All of these are works in progress.

In Immersive Experience Studio, I am creating an indoor wild west town in which guests get to become bounty hunters and track down their assigned target with an IR enabled revolver. Guests enter through a train station facade and board a simulated train ride before reaching the town. Everything is being modeled in Revit and textured using Quixel megascan materials in Unreal.

Train Model in Revit

Train Passenger Car Interior

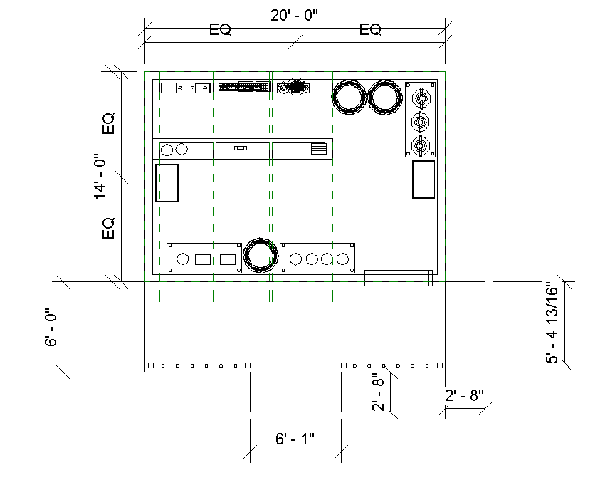
General Store Layout

General Store Textured

Saloon Interior with no walls

Textured Train in Unreal Engine

Attraction Facade

General Store Interior 3D Model

Saloon Exterior

Modeled Attraction Interior

In Universal Creative Lab, I’m designing a dark ride. These are early versions of the layout using models made in Revit as well as Unreal Engine, and has been animated in Unreal. The design is continuously being updated to account for ASTM Standards. Each layout will progressively become more detailed as you scroll. As more improvements are made, these layouts will be further updated.

Universal Creative Lab Original Scene Layout

Universal Creative Lab Updated Scene Layout